Bouwnummer CF-44
Amsterdam-Zuidoost
2 foto's
Verhuurd
€ 1.935 p.m.
87 m²
3 kamers
Deze woning is niet meer beschikbaar, maak een account aan en ontvang voortaan het woningaanbod op maat.
Woningomschrijving
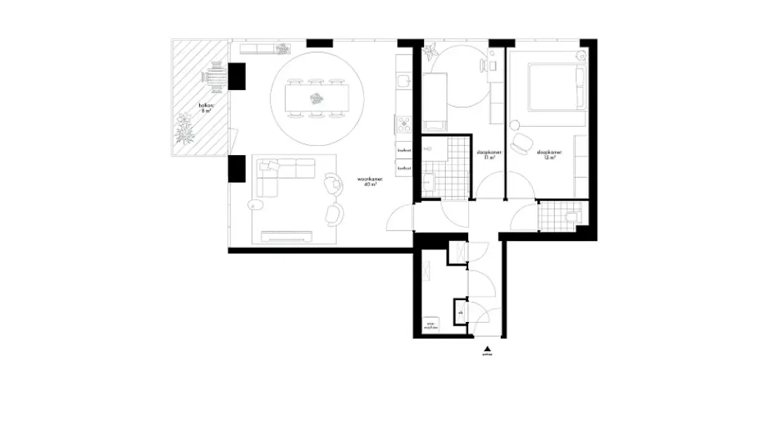
Dit royale 3-kamerappartement ligt op de 6e, 8e, 10e, 12e, 14e, 16e, 18e en 20e verdieping en heeft een woonoppervlakte van ongeveer 87 m² en een balkon op het noordwesten. Vanwege de hoekligging heeft de fraaie living aan twee zijden ramen wat zorgt voor een mooie lichtinval, ook in de keuken. Verder is het appartement ingedeeld met een twee ruime slaapkamers, apart toilet, badkamer en een berging voor de wasmachine en wasdroger en de technische apparaten.
Specificaties
Woning
Status
Verkocht/Verhuurd
Prijs
€ 1.935 p.m.
Woonoppervlakte
87 m²
Buitenoppervlakte
8 m²
Aantal kamers
3
Soort woning
Appartement
