Bouwnummer 72
Assendelft
2 foto's
Verkocht
€ 695.000 v.o.n
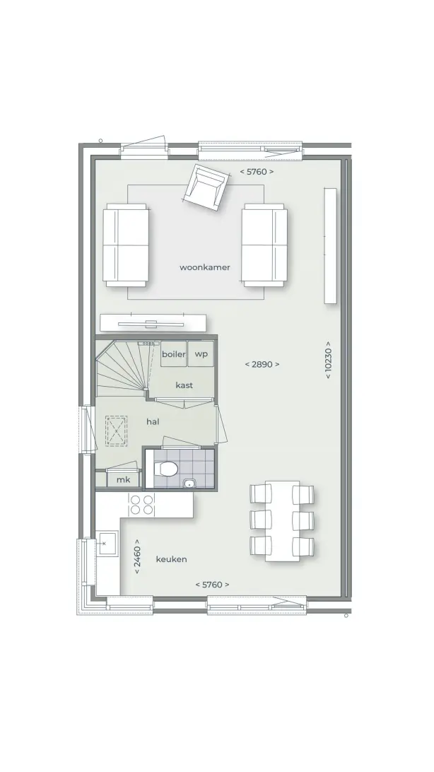
156 m²
4 kamers
Deze woning is niet meer beschikbaar, maak een account aan en ontvang voortaan het woningaanbod op maat.
Specificaties
Woning
Status
Verkocht
Prijs
€ 695.000 v.o.n
Woonoppervlakte
156 m²
Perceeloppervlakte
299 m²
Energielabel
A++++
Aantal kamers
4
Aantal slaapkamers
5
Soort woning
2 onder 1 kap woning
