Bouwnummer 106
Amsterdam
1 foto
Onder optie
€ 545.000 v.o.n
95 m²
5 kamers
Woningomschrijving
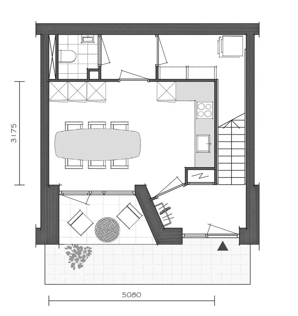
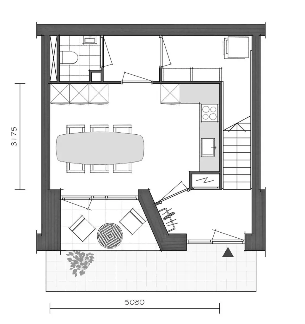
Met bouwnummer 106 haal je een maisonnette in huis van 95 m² met drie slaapkamers, perfect voor een actieve levensstijl. Deze woning heeft de entree op de begane grond en biedt een ideale indeling voor comfort en gebruiksgemak. De balkonligging op het oosten en de ligging van het fraaie dakterras op het westen (circa 31 m²) garandeert een fijne zonbeleving door de dag heen, waardoor je volop kunt genieten van buitenactiviteiten, of dat nu met een boek in de zon is of een gezellige barbecue in de avond.
Het energie label A++ van deze woning benadrukt de duurzaamheid, wat belangrijk is voor een milieuvriendelijk leven. De buitenruimte biedt je de kans om te ontspannen en de levendigheid van de buurt te ervaren.
In Elzenhagen Zuid vind je een unieke mix van stad en natuur, met tal van mogelijkheden voor verkenning en avontuur. De nabijheid van sportfaciliteiten en groene ruimtes maakt deze locatie ideaal voor wie houdt van een actieve levensstijl. Bouwnummer 106 biedt de perfecte combinatie van comfort, duurzaamheid en een levendige omgeving, ideaal voor een modern leven in Amsterdam.
De getoonde plattegrond is van bouwnummer 102. De raam-, gevel- en tuinindeling van bouwnummer 106 kan afwijken van de getoonde plattegrond(en).
ERFPACHT 
Als eerste koper van de woning heb je de mogelijkheid om te kiezen voor afkoop van de erfpacht (eeuwigdurend) of voor betaling van jaarlijkse indexcanon. Wist je dat de indexcanon fiscaal aftrekbaar is? En dat het kopen op basis van jaarlijkse indexcanon ook andere financiële voordelen zou kunnen? Houd er rekening mee dat de canon verplichting van invloed is op de leencapaciteit. Onze hypotheekadviseur kan je hier meer over vertellen.
*De finale bedragen worden door de gemeente Amsterdam vastgesteld bij levering van een definitieve erfpachtaanbieding. Aan deze bedragen kunnen geen rechten worden ontleend.
** De koopsom voor de stallingsplaats is niet inbegrepen in de v.o.n.-prijs van de appartement. De toegewezen stallingsplaats dient verplicht te worden afgenomen.
Specificaties
Woning
Status
Onder optie
Prijs
€ 545.000 v.o.n
Servicekosten
€ 280
Woonoppervlakte
95 m²
Energielabel
A++
Aantal kamers
5
Soort woning
Appartement
