Bouwnummer 107
Amsterdam
1 foto
Verkocht
€ 545.000 v.o.n
95 m²
5 kamers
Deze woning is niet meer beschikbaar, maak een account aan en ontvang voortaan het woningaanbod op maat.
Woningomschrijving
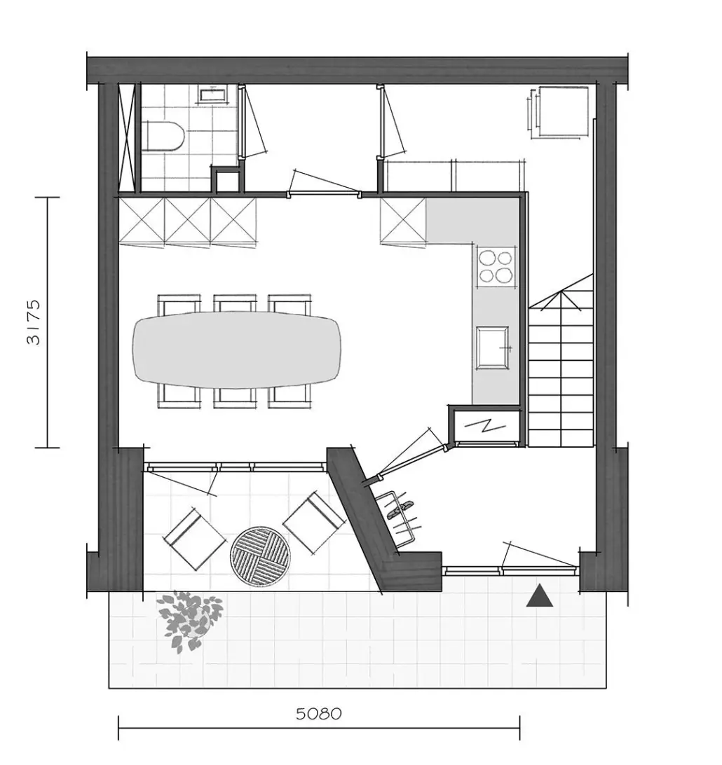
Bouwnummer 107 is een maisonnette met een woonoppervlakte van 95 m² en vier kamers, ideaal voor een dynamische en actieve levensstijl. Deze woning heeft de entree op de begane grond biedt een praktische indeling. Met een balkonligging op het oosten en dakterras op het westen (circa 31 m²) is het perfect voor het genieten van de zon, van de eerste stralen in de ochtend tot de ondergang in de avond.
Met het energie label A++ ben je verzekerd van een duurzame woonomgeving die bijdraagt aan een verantwoord leven. De buitenruimte is een verlengstuk van je woning en nodigt uit tot ontspanning en sociale interactie. 
Elzenhagen Zuid is een bruisende wijk die avontuur en ontdekking omarmt. De nabijheid van sportfaciliteiten en groene gebieden maakt het leven hier bijzonder aantrekkelijk. Bouwnummer 107 is de perfecte keuze voor diegenen die op zoek zijn naar een moderne woning in Amsterdam, waarbij een actieve levensstijl en een gevoel van gemeenschap centraal staan.
De getoonde plattegrond is van bouwnummer 102. De raam-, gevel- en tuinindeling van bouwnummer 107 kan afwijken van de getoonde plattegrond(en).
ERFPACHT 
Als eerste koper van de woning heb je de mogelijkheid om te kiezen voor afkoop van de erfpacht (eeuwigdurend) of voor betaling van jaarlijkse indexcanon. Wist je dat de indexcanon fiscaal aftrekbaar is? En dat het kopen op basis van jaarlijkse indexcanon ook andere financiële voordelen zou kunnen? Houd er rekening mee dat de canon verplichting van invloed is op de leencapaciteit. Onze hypotheekadviseur kan je hier meer over vertellen.
*De finale bedragen worden door de gemeente Amsterdam vastgesteld bij levering van een definitieve erfpachtaanbieding. Aan deze bedragen kunnen geen rechten worden ontleend.
** De koopsom voor de stallingsplaats is niet inbegrepen in de v.o.n.-prijs van de appartement. De toegewezen stallingsplaats dient verplicht te worden afgenomen.
Specificaties
Woning
Status
Verkocht
Prijs
€ 545.000 v.o.n
Woonoppervlakte
95 m²
Energielabel
A++
Aantal kamers
5
Soort woning
Appartement
