Bouwnummer 116
Amsterdam
1 foto
Verkocht
€ 560.000 v.o.n
93 m²
5 kamers
Deze woning is niet meer beschikbaar, maak een account aan en ontvang voortaan het woningaanbod op maat.
Woningomschrijving
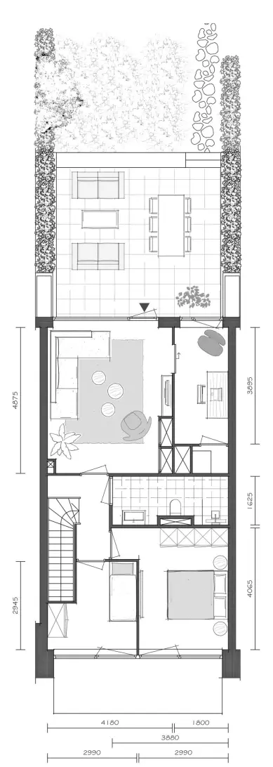
Deze maisonnette van 93 m² is perfect voor een actieve levensstijl, met vijf kamers die de mogelijkheid bieden om te ontspannen of te werken. De entree is gelegen op de begane grond met de mogelijkheid voor een zitje in de heerlijke avondzon, heeft deze ook een dakterras dat aan de woonkamer grenst van circa 26 m². Dit biedt een unieke kans om op verschillende momenten van de dag van de buitenlucht en de rust te genieten.
Met energielabel A++ ben je verzekerd van een energiezuinige woning die bijdraagt aan een duurzaam leven. De focus op buitenruimtes in combinatie met de levendige sfeer van Elzenhagen Zuid zorgt ervoor dat je een thuis hebt dat perfect aansluit bij jouw behoeften. Hierdoor krijg je de kans om je eigen plek te creëren in een buurt die bruist van de mogelijkheden en waar je altijd iets nieuws kunt ontdekken.
De getoonde plattegrond is van bouwnummer 120. De raam-, gevel- en tuinindeling van bouwnummer 116 kan afwijken van de getoonde plattegrond(en).
ERFPACHT 
Als eerste koper van de woning heb je de mogelijkheid om te kiezen voor afkoop van de erfpacht (eeuwigdurend) of voor betaling van jaarlijkse indexcanon. Wist je dat de indexcanon fiscaal aftrekbaar is? En dat het kopen op basis van jaarlijkse indexcanon ook andere financiële voordelen zou kunnen? Houd er rekening mee dat de canon verplichting van invloed is op de leencapaciteit. Onze hypotheekadviseur kan je hier meer over vertellen.
*De finale bedragen worden door de gemeente Amsterdam vastgesteld bij levering van een definitieve erfpachtaanbieding. Aan deze bedragen kunnen geen rechten worden ontleend.
** De koopsom voor de stallingsplaats is niet inbegrepen in de v.o.n.-prijs van de appartement. De toegewezen stallingsplaats dient verplicht te worden afgenomen.
Specificaties
Woning
Status
Verkocht
Prijs
€ 560.000 v.o.n
Woonoppervlakte
93 m²
Energielabel
A++
Aantal kamers
5
Soort woning
Appartement
