Bouwnummer 142
Amsterdam
1 foto
Verkocht
€ 310.000 v.o.n
45 m²
2 kamers
Deze woning is niet meer beschikbaar, maak een account aan en ontvang voortaan het woningaanbod op maat.
Woningomschrijving
Bouwnummer 142 is een compact en efficiënt appartement van 45 m² gelegen op de tweede verdieping. Dit appartement is perfect voor een moderne levensstijl. Met een balkon op het oosten kun je genieten van de ochtendzon, perfect voor een frisse start van de dag met een kopje koffie.
Het appartement heeft energielabel A+++, wat bijdraagt aan een duurzame woonervaring. De levendige buurt biedt een scala aan voorzieningen, waardoor je altijd in de buurt bent van wat je nodig hebt voor een actief leven. Dit appartement is een uitstekende keuze voor diegenen die op zoek zijn naar een dynamische woonomgeving.
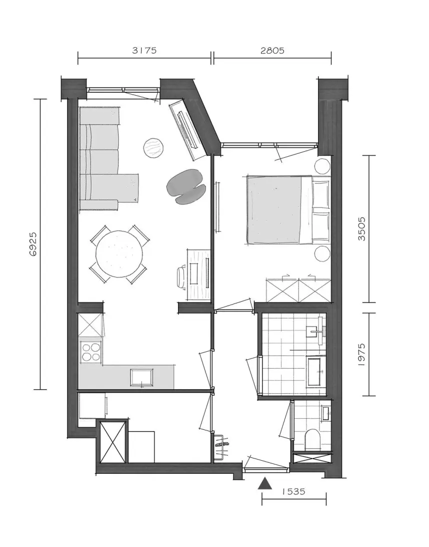
De getoonde plattegrond is van bouwnummer 131. De raam-, gevel- en tuinindeling van bouwnummer 142 kan afwijken van de getoonde plattegrond(en). Bouwnummer 142 heeft een balkon.
ERFPACHT
Als eerste koper van de woning heb je de mogelijkheid om te kiezen voor afkoop van de erfpacht (eeuwigdurend) of voor betaling van jaarlijkse indexcanon. Wist je dat de indexcanon fiscaal aftrekbaar is? En dat het kopen op basis van jaarlijkse indexcanon ook andere financiële voordelen zou kunnen? Houd er rekening mee dat de canon verplichting van invloed is op de leencapaciteit. Onze hypotheekadviseur kan je hier meer over vertellen.
*De finale bedragen worden door de gemeente Amsterdam vastgesteld bij levering van een definitieve erfpachtaanbieding. Aan deze bedragen kunnen geen rechten worden ontleend.
Specificaties
Woning
Status
Verkocht
Prijs
€ 310.000 v.o.n
Woonoppervlakte
45 m²
Energielabel
A+++
Aantal kamers
2
Soort woning
Appartement
