Bouwnummer 143
Amsterdam
1 foto
Onder optie
€ 395.000 v.o.n
63 m²
3 kamers
Woningomschrijving
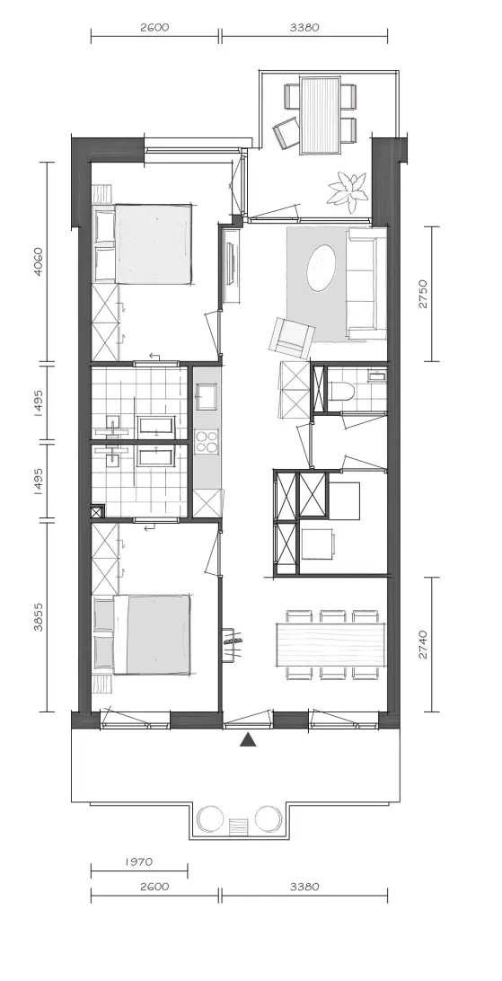
Bouwnummer 143 is een gezellig appartement van 63 m² met twee slaapkamers, gelegen op de tweede verdieping. Dit appartement is perfect voor diegenen die houden van een actieve levensstijl en tegelijkertijd willen genieten van comfort. Het balkon op het oosten biedt een geweldige plek om de ochtenden door te brengen, met volop zon om je dag goed te beginnen.
Met energielabel A+++ ben je verzekerd van een milieuvriendelijke woonoplossing. De levendige wijk biedt veel mogelijkheden voor avontuur en ontdekking, waardoor je altijd iets nieuws kunt ervaren. Dit appartement is een ideale uitvalsbasis voor een dynamisch en sociaal leven.
Koop & Deelwoning
Wist je dat we in Noordhof 5 ook een nieuwe (unieke) woonconcept hebben: namelijk de Koop & Deelwoning. Dit zijn speciale woningen die je samen kunt kopen & delen. Niet perse met een partner, maar bijvoorbeeld met een goede vriend(in) of iemand op leeftijd. Dat maakt het kopen van een woning soms net wat interessanter of juist makkelijker. In Noordhof 5 hebben een aantal appartementen de mogelijkheid om te voor dit woonconcept te kunnen kiezen. Bouwnummer 143 is daar een van. Bij dit appartement kun je kiezen voor een plattegrond met 2 slaapkamers en een woningbrede woonkamer (basis plattegrond bouwnummer 143) of een plattegrond met twee gelijkwaardige slaapkamers, 2 badkamers en deel je samen een woonkamer/keuken. Nieuwsgierig geworden naar dit woonconcept? Bekijk dan de plattegronden in de afbeeldingen met beide mogelijkheden en houd dan de site in de gaten en schrijf je in. Binnenkort zullen we je nog veel meer over de Koop & Deelwoning gaan vertellen!
De getoonde plattegrond is van bouwnummer 143. De alternatieve plattegrond (Koop&Deelwoning) is van bouwnummer 146. De raam-, plattegrond-, gevelindeling van deze alternatieve plattegrond voor bouwnummer 143 kan afwijken van deze getoonde plattegrond.
ERFPACHT
Als eerste koper van de woning heb je de mogelijkheid om te kiezen voor afkoop van de erfpacht (eeuwigdurend) of voor betaling van jaarlijkse indexcanon. Wist je dat de indexcanon fiscaal aftrekbaar is? En dat het kopen op basis van jaarlijkse indexcanon ook andere financiële voordelen zou kunnen? Houd er rekening mee dat de canon verplichting van invloed is op de leencapaciteit. Onze hypotheekadviseur kan je hier meer over vertellen.
*De finale bedragen worden door de gemeente Amsterdam vastgesteld bij levering van een definitieve erfpachtaanbieding. Aan deze bedragen kunnen geen rechten worden ontleend.
Specificaties
Woning
Status
Onder optie
Prijs
€ 395.000 v.o.n
Servicekosten
€ 175
Woonoppervlakte
63 m²
Energielabel
A+++
Aantal kamers
3
Soort woning
Appartement
