Bouwnummer 144
Amsterdam
4 foto's
Onder optie
€ 395.000 v.o.n
62 m²
3 kamers
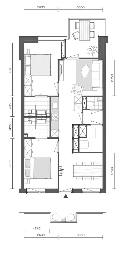
Woningomschrijving
Dit charmante appartement van 62 m² op de tweede verdieping biedt een perfecte mix van comfort en dynamiek. Met 3 kamers is het ideaal voor diegenen die op zoek zijn naar een plek om te ontspannen en te genieten van het leven.
De oostelijke balkonligging laat de ochtendzon binnenstromen, waardoor je elke dag kunt beginnen met een stralend uitzicht en een warme ambiance. Dit appartement heeft energielabel A+++, wat bijdraagt aan de duurzaamheid en het wooncomfort. 
De variatie in woningtypes in Elzenhagen Zuid past perfect bij jouw actieve levensstijl, terwijl de nabijheid van groen en recreatieve mogelijkheden uitnodigt tot avontuur. Deze woning biedt niet alleen een thuis, maar ook de kans om deel uit te maken van een levendige gemeenschap waar je samen kunt komen met anderen. Geniet van de buitenruimte en de sfeer die deze wijk te bieden heeft.
Koop & Deelwoning
Wist je dat we in Noordhof 5 ook een nieuwe (unieke) woonconcept hebben: namelijk de Koop & Deelwoning. Dit zijn speciale woningen die je samen kunt kopen & delen. Niet perse met een partner, maar bijvoorbeeld met een goede vriend(in) of iemand op leeftijd. Dat maakt het kopen van een woning soms net wat interessanter of juist makkelijker. In Noordhof 5 hebben een aantal appartementen de mogelijkheid om te voor dit woonconcept te kunnen kiezen. 
Bouwnummer 144 is daar een van. Bij dit appartement kun je kiezen voor of een plattegrond met 2 slaapkamers en een woningbrede woonkamer of een plattegrond met twee gelijkwaardige slaapkamers, 2 badkamers en deel je samen een woonkamer/keuken  (basis plattegrond bouwnummer 144) .
Nieuwsgierig geworden naar dit woonconcept? Bekijk dan de 3d-plattegrond in de afbeeldingen met beide mogelijkheden en houd dan de site in de gaten en schrijf je in. Binnenkort zullen we je nog veel meer over de Koop & Deelwoning gaan vertellen! 
De getoonde (basis) plattegrond is van bouwnummer 146. De raam-, plattegrond-, gevelindeling van deze plattegrond kan afwijken van deze getoonde plattegrond. De alternatieve plattegrond (met woningbrede woonkamer) is van bouwnummer 143 en is hetzelfde als bouwnummer 144.
ERFPACHT 
Als eerste koper van de woning heb je de mogelijkheid om te kiezen voor afkoop van de erfpacht (eeuwigdurend) of voor betaling van jaarlijkse indexcanon. Wist je dat de indexcanon fiscaal aftrekbaar is? En dat het kopen op basis van jaarlijkse indexcanon ook andere financiële voordelen zou kunnen? Houd er rekening mee dat de canon verplichting van invloed is op de leencapaciteit. Onze hypotheekadviseur kan je hier meer over vertellen.
*De finale bedragen worden door de gemeente Amsterdam vastgesteld bij levering van een definitieve erfpachtaanbieding. Aan deze bedragen kunnen geen rechten worden ontleend.
Specificaties
Woning
Status
Onder optie
Prijs
€ 395.000 v.o.n
Servicekosten
€ 175
Woonoppervlakte
62 m²
Energielabel
A+++
Aantal kamers
3
Soort woning
Appartement
