Bouwnummer 150
Amsterdam
2 foto's
Verkocht
€ 495.000 v.o.n
80 m²
4 kamers
Deze woning is niet meer beschikbaar, maak een account aan en ontvang voortaan het woningaanbod op maat.
Woningomschrijving
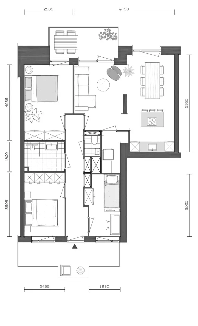
Dit ruime appartement van 80 m² bevindt zich op de tweede verdieping en beschikt over 3 slaapkamers, perfect voor diegenen die behoefte hebben aan extra ruimte.
De oostelijke balkonligging biedt een uitstekende gelegenheid om te genieten van de ochtendzon, wat een fijne aanvulling is op je dagelijkse routine. Met energielabel A+++ ben je verzekerd van een duurzame en energiezuinige woonomgeving. Elzenhagen Zuid is een dynamische wijk die uitnodigt tot avontuur, met een mix van verschillende woningtypes die passen bij jouw levensstijl.
Geniet van de nabijheid van groen en recreatieve mogelijkheden, waar je kunt ontspannen en de natuur kunt verkennen. Dit appartement biedt niet alleen een thuis, maar ook de mogelijkheid om deel uit te maken van een levendige gemeenschap waar beleving en verbinding centraal staan.
ERFPACHT
Als eerste koper van de woning heb je de mogelijkheid om te kiezen voor afkoop van de erfpacht (eeuwigdurend) of voor betaling van jaarlijkse indexcanon. Wist je dat de indexcanon fiscaal aftrekbaar is? En dat het kopen op basis van jaarlijkse indexcanon ook andere financiële voordelen zou kunnen? Houd er rekening mee dat de canon verplichting van invloed is op de leencapaciteit. Onze hypotheekadviseur kan je hier meer over vertellen.
*De finale bedragen worden door de gemeente Amsterdam vastgesteld bij levering van een definitieve erfpachtaanbieding. Aan deze bedragen kunnen geen rechten worden ontleend.
** De koopsom voor de stallingsplaats is niet inbegrepen in de v.o.n.-prijs van de appartement. De toegewezen stallingsplaats dient verplicht te worden afgenomen.
Specificaties
Woning
Status
Verkocht
Prijs
€ 495.000 v.o.n
Woonoppervlakte
80 m²
Energielabel
A+++
Aantal kamers
4
Soort woning
Appartement
