Bouwnummer 153
Amsterdam
3 foto's
Onder optie
€ 755.000 v.o.n
121 m²
5 kamers
Woningomschrijving
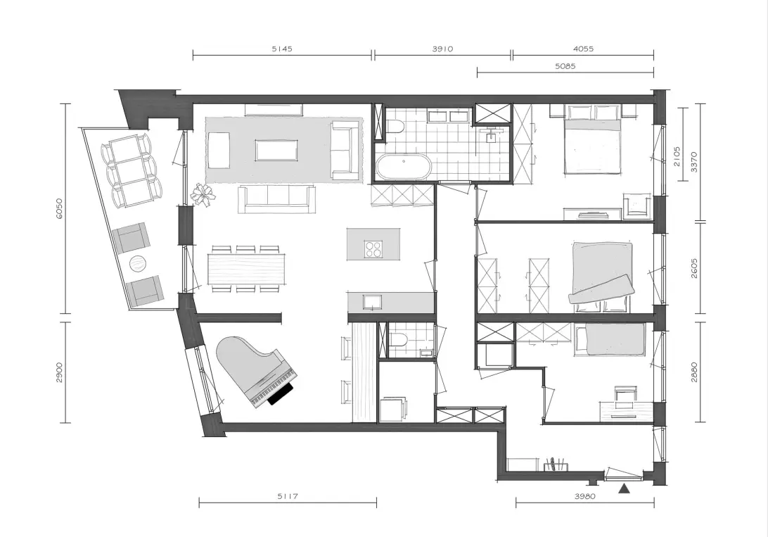
Met een royale woonoppervlakte van 121 m² en 3 slaapkamers (en zelfs een vierde slaapkamer is mogelijk), is dit appartement op de tweede verdieping perfect voor diegenen die behoefte hebben aan ruimte en comfort. De balkonligging op het zuiden biedt de mogelijkheid om volop van de zon te genieten, wat ideaal is voor ontspanning en sociale momenten. 
Het appartement heeft energielabel A+++, wat zorgt voor een energiezuinige en comfortabele woonomgeving. Elzenhagen Zuid is een dynamische wijk die uitnodigt tot avontuur, met een diverse mix van woningen die aansluiten bij jouw levensstijl. Geniet van de groene ruimtes en de nabijheid van voorzieningen, waar je kunt ontspannen en nieuwe ervaringen opdoen. Dit appartement biedt niet alleen een schitterende woonruimte, maar ook de kans om deel uit te maken van een levendige gemeenschap waarin beleving en verbinding centraal staan.
ERFPACHT 
Als eerste koper van de woning heb je de mogelijkheid om te kiezen voor afkoop van de erfpacht (eeuwigdurend) of voor betaling van jaarlijkse indexcanon. Wist je dat de indexcanon fiscaal aftrekbaar is? En dat het kopen op basis van jaarlijkse indexcanon ook andere financiële voordelen zou kunnen? Houd er rekening mee dat de canon verplichting van invloed is op de leencapaciteit. Onze hypotheekadviseur kan je hier meer over vertellen.
*De finale bedragen worden door de gemeente Amsterdam vastgesteld bij levering van een definitieve erfpachtaanbieding. Aan deze bedragen kunnen geen rechten worden ontleend.
** De koopsom voor de stallingsplaats is niet inbegrepen in de v.o.n.-prijs van de appartement. De toegewezen stallingsplaats dient verplicht te worden afgenomen.
Specificaties
Woning
Status
Onder optie
Prijs
€ 755.000 v.o.n
Servicekosten
€ 335
Woonoppervlakte
121 m²
Energielabel
A+++
Aantal kamers
5
Soort woning
Appartement
