Bouwnummer 157
Amsterdam
1 foto
Verkocht
€ 515.000 v.o.n
80 m²
4 kamers
Deze woning is niet meer beschikbaar, maak een account aan en ontvang voortaan het woningaanbod op maat.
Woningomschrijving
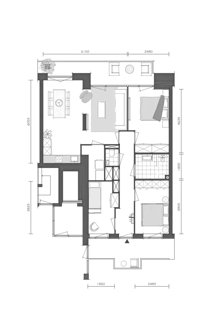
Bouwnummer 157 heeft een woonoppervlakte van 80 m² en beschikt over drie kamers. Dit appartement op de tweede verdieping heeft een balkon over de gehele breedte dat naar het westen gericht is, ideaal voor het genieten van de avondzon. De ruimte is ontworpen met het oog op comfort en biedt de mogelijkheid om te ontspannen na een actieve dag.
Met een energie label van A+++ ben je verzekerd van een duurzame woning die voldoet aan moderne normen. De indeling van de woning stimuleert een gevoel van samenhorigheid en biedt een uitnodigende atmosfeer. De omgeving is perfect voor diegenen die houden van een actieve levensstijl met toegang tot recreatieve mogelijkheden.
Bouwnummer 157 is een thuis dat uitnodigt tot ontdekken en genieten. Het biedt een inspirerende leefomgeving in Amsterdam, waar je kunt genieten van het leven en de levendigheid van de stad.
ERFPACHT
Als eerste koper van de woning heb je de mogelijkheid om te kiezen voor afkoop van de erfpacht (eeuwigdurend) of voor betaling van jaarlijkse indexcanon. Wist je dat de indexcanon fiscaal aftrekbaar is? En dat het kopen op basis van jaarlijkse indexcanon ook andere financiële voordelen zou kunnen? Houd er rekening mee dat de canon verplichting van invloed is op de leencapaciteit. Onze hypotheekadviseur kan je hier meer over vertellen.
*De finale bedragen worden door de gemeente Amsterdam vastgesteld bij levering van een definitieve erfpachtaanbieding. Aan deze bedragen kunnen geen rechten worden ontleend.
** De koopsom voor de stallingsplaats is niet inbegrepen in de v.o.n.-prijs van de appartement. De toegewezen stallingsplaats dient verplicht te worden afgenomen.
Specificaties
Woning
Status
Verkocht
Prijs
€ 515.000 v.o.n
Woonoppervlakte
80 m²
Energielabel
A+++
Aantal kamers
4
Soort woning
Appartement
