Bouwnummer 210
Amsterdam
3 foto's
Verkocht
€ 400.000 v.o.n
62 m²
3 kamers
Deze woning is niet meer beschikbaar, maak een account aan en ontvang voortaan het woningaanbod op maat.
Woningomschrijving
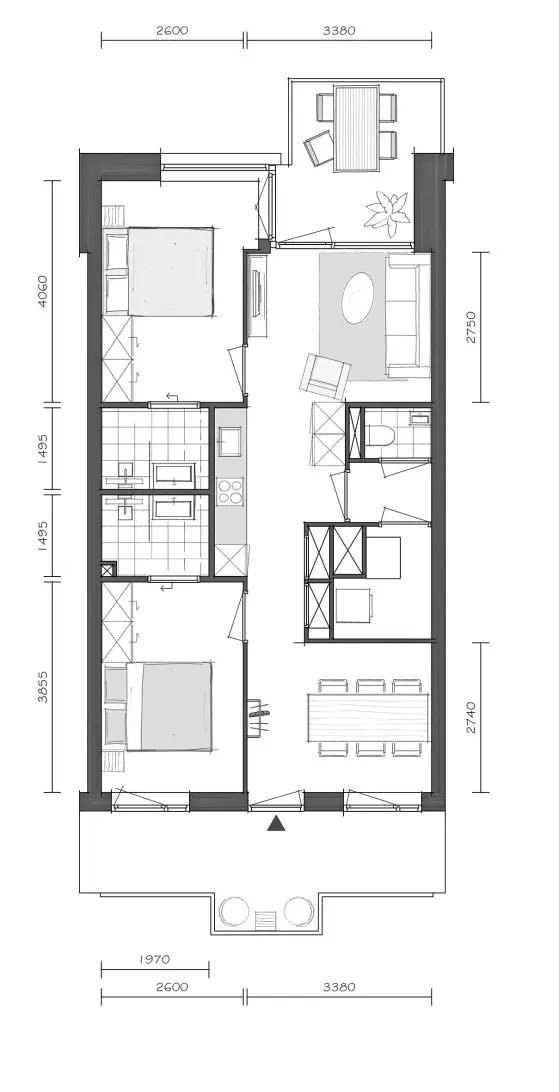
Bouwnummer 210 is een 3-kamer appartement van 62 m², gelegen op de vierde verdieping. Dit appartement is perfect voor een dynamische levensstijl met een focus op beleving. Het balkon biedt de mogelijkheid om te genieten van de eerste zonnestralen van de dag, ideaal voor een rustige ochtend met een kop koffie of thee. Met energielabel A+++ is dit appartement ook een duurzame keuze.
De moderne inrichting en slimme indeling maken het appartement comfortabel en uitnodigend. De levendige omgeving rondom biedt volop mogelijkheden om te ontdekken, met sportfaciliteiten en groene ruimtes in de nabijheid. Bouwnummer 210 is de perfecte keuze voor iedereen die op zoek is naar een nieuw thuis in Amsterdam, waar avontuur en ontspanning hand in hand gaan.
Koop & Deelwoning
Wist je dat we in Noordhof 5 ook een nieuwe (unieke) woonconcept hebben: namelijk de Koop & Deelwoning. Dit zijn speciale woningen die je samen kunt kopen & delen. Niet perse met een partner, maar bijvoorbeeld met een goede vriend(in) of iemand op leeftijd. Dat maakt het kopen van een woning soms net wat interessanter of juist makkelijker. In Noordhof 5 hebben een aantal appartementen de mogelijkheid om te voor dit woonconcept te kunnen kiezen. Bouwnummer 210 is daar een van. Bij dit appartement kun je kiezen voor een plattegrond met 2 slaapkamers en een woningbrede woonkamer of een plattegrond met twee gelijkwaardige slaapkamers, 2 badkamers en deel je samen een woonkamer/keuken (basis plattegrond bouwnummer 210). Nieuwsgierig geworden naar dit woonconcept? Bekijk dan de plattegronden in de afbeeldingen met beide mogelijkheden en houd dan de site in de gaten en schrijf je in. Binnenkort zullen we je nog veel meer over de Koop & Deelwoning gaan vertellen!
ERFPACHT
Als eerste koper van de woning heb je de mogelijkheid om te kiezen voor afkoop van de erfpacht (eeuwigdurend) of voor betaling van jaarlijkse indexcanon. Wist je dat de indexcanon fiscaal aftrekbaar is? En dat het kopen op basis van jaarlijkse indexcanon ook andere financiële voordelen zou kunnen? Houd er rekening mee dat de canon verplichting van invloed is op de leencapaciteit. Onze hypotheekadviseur kan je hier meer over vertellen.
* De finale bedragen worden door de gemeente Amsterdam vastgesteld bij levering van een definitieve erfpachtaanbieding. Aan deze bedragen kunnen geen rechten worden ontleend.
** Dit bouwnummer heeft geen stallingsplaats toegewezen gekregen. Er is een aantal stallingsplaatsen/motoropstelplaatsen beschikbaar. Indien je hier interesse in hebt dien je dit kenbaar te maken op het inschrijfformulier. Bij meer belangstelling dan de beschikbare 'vrije' stallingsplaatsen/motoropstelplaatsen worden deze toegewezen door verkoper. De v.o.n.-prijs voor een stallingsplaats is € 45.000,- obv eeuwigdurende afgekochte erfpacht. De v.o.n.-prijs voor een motoropstelplaats is € 12.500,- obv eeuwigdurende afgekochte erfpacht.
Specificaties
Woning
Status
Verkocht
Prijs
€ 400.000 v.o.n
Woonoppervlakte
62 m²
Energielabel
A+++
Aantal kamers
3
Soort woning
Appartement
