Bouwnummer 225
Amsterdam
3 foto's
Verkocht
€ 420.000 v.o.n
64 m²
3 kamers
Deze woning is niet meer beschikbaar, maak een account aan en ontvang voortaan het woningaanbod op maat.
Woningomschrijving
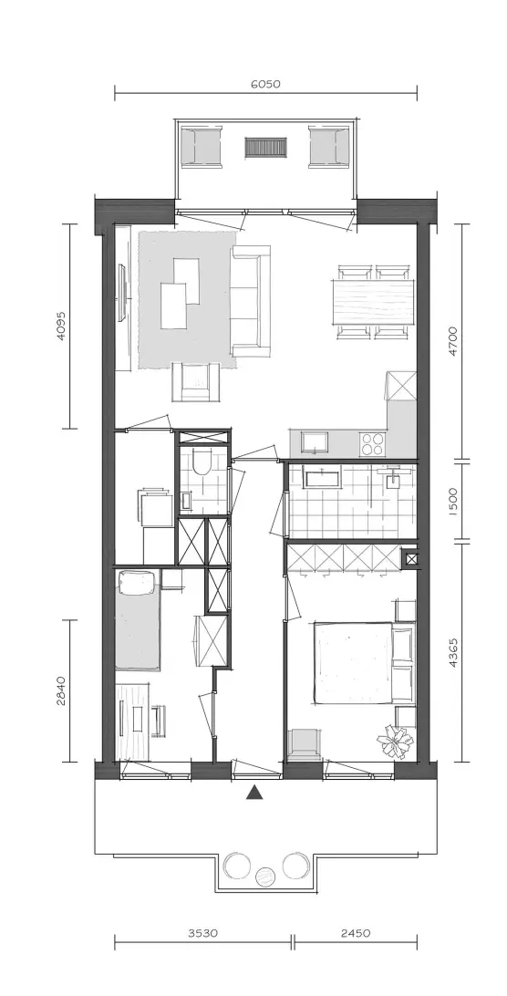
Bouwnummer 225 heeft een woonoppervlakte van 64 m² en beschikt over twee slaapkamers. De ruimte is met zorg ingericht, wat zorgt voor een fijne woonbeleving. Gelegen op de vierde verdieping, biedt dit appartement een breed balkon dat op het westen ligt, wat perfect is voor het genieten van de zonsondergang na een drukke dag. 
De omgeving van Elzenhagen Zuid biedt een dynamische sfeer, waar u zich vrij voelt om te ontdekken en te genieten. De combinatie van een actieve levensstijl en de mogelijkheid om te ontspannen in de buitenlucht maakt dit een unieke woonervaring. De nabijheid van voorzieningen en groen maakt het leven hier compleet. Dit is een plek waar u kunt groeien, samenkomen en het avontuur kunt aangaan dat het stadsleven te bieden heeft.
Koop & Deelwoning
Wist je dat we in Noordhof 5 ook een nieuwe (unieke) woonconcept hebben: namelijk de Koop & Deelwoning. Dit zijn speciale woningen die je samen kunt kopen & delen. Niet perse met een partner, maar bijvoorbeeld met een goede vriend(in) of iemand op leeftijd. Dat maakt het kopen van een woning soms net wat interessanter of juist makkelijker. In Noordhof 5 hebben een aantal appartementen de mogelijkheid om te voor dit woonconcept te kunnen kiezen. Bouwnummer 225 is daar een van. Bij dit appartement kun je kiezen voor een plattegrond met 2 slaapkamers en een woningbrede woonkamer (basis plattegrond bouwnummer 225) of een plattegrond met twee gelijkwaardige slaapkamers, 2 badkamers en deel je samen een woonkamer/keuken. Nieuwsgierig geworden naar dit woonconcept? Bekijk dan de plattegronden in de afbeeldingen met beide mogelijkheden en houd dan de site in de gaten en schrijf je in. Binnenkort zullen we je nog veel meer over de Koop & Deelwoning gaan vertellen!
ERFPACHT 
Als eerste koper van de woning heb je de mogelijkheid om te kiezen voor afkoop van de erfpacht (eeuwigdurend) of voor betaling van jaarlijkse indexcanon. Wist je dat de indexcanon fiscaal aftrekbaar is? En dat het kopen op basis van jaarlijkse indexcanon ook andere financiële voordelen zou kunnen? Houd er rekening mee dat de canon verplichting van invloed is op de leencapaciteit. Onze hypotheekadviseur kan je hier meer over vertellen.
* De finale bedragen worden door de gemeente Amsterdam vastgesteld bij levering van een definitieve erfpachtaanbieding. Aan deze bedragen kunnen geen rechten worden ontleend.
** Dit bouwnummer heeft geen stallingsplaats toegewezen gekregen. Er is een aantal stallingsplaatsen/motoropstelplaatsen beschikbaar. Indien je hier interesse in hebt dien je dit kenbaar te maken op het inschrijfformulier. Bij meer belangstelling dan de beschikbare 'vrije' stallingsplaatsen/motoropstelplaatsen worden deze toegewezen door verkoper. De v.o.n.-prijs voor een stallingsplaats is € 45.000,- obv eeuwigdurende afgekochte erfpacht. De v.o.n.-prijs voor een motoropstelplaats is € 12.500,- obv eeuwigdurende afgekochte erfpacht.
Specificaties
Woning
Status
Verkocht
Prijs
€ 420.000 v.o.n
Woonoppervlakte
64 m²
Energielabel
A++
Aantal kamers
3
Soort woning
Appartement
