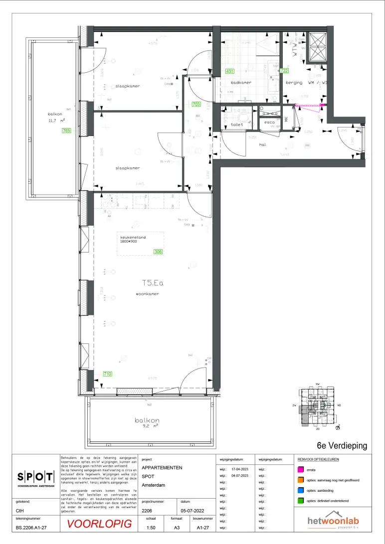
Bouwnummer A1-27
amsterdam
2 foto's
Beschikbaar
€ 587.000 v.o.n
89 m²
Woningomschrijving
De buitengewoon comfortabele Grand apartments - verspreid over alle verdiepingen - hebben een ruim woonoppervlak van 71 m2 tot 127 m2. Of je nu alleen, met twee of met een gezin woont; voor elk type huishouden zijn er ideale indelingen. Naast een ruime living met open keuken en twee of drie slaapkamers beschik je over een eigen balkon of terras. In sommige appartementen geniet je zelfs van twee buitenruimten. Het spreekt voor zich dat alle appartementen netjes zijn afgewerkt.
Specificaties
Woning
Status
Beschikbaar
Prijs
€ 587.000 v.o.n
Woonoppervlakte
89 m²
Buitenoppervlakte
21 m²
Aantal slaapkamers
2
