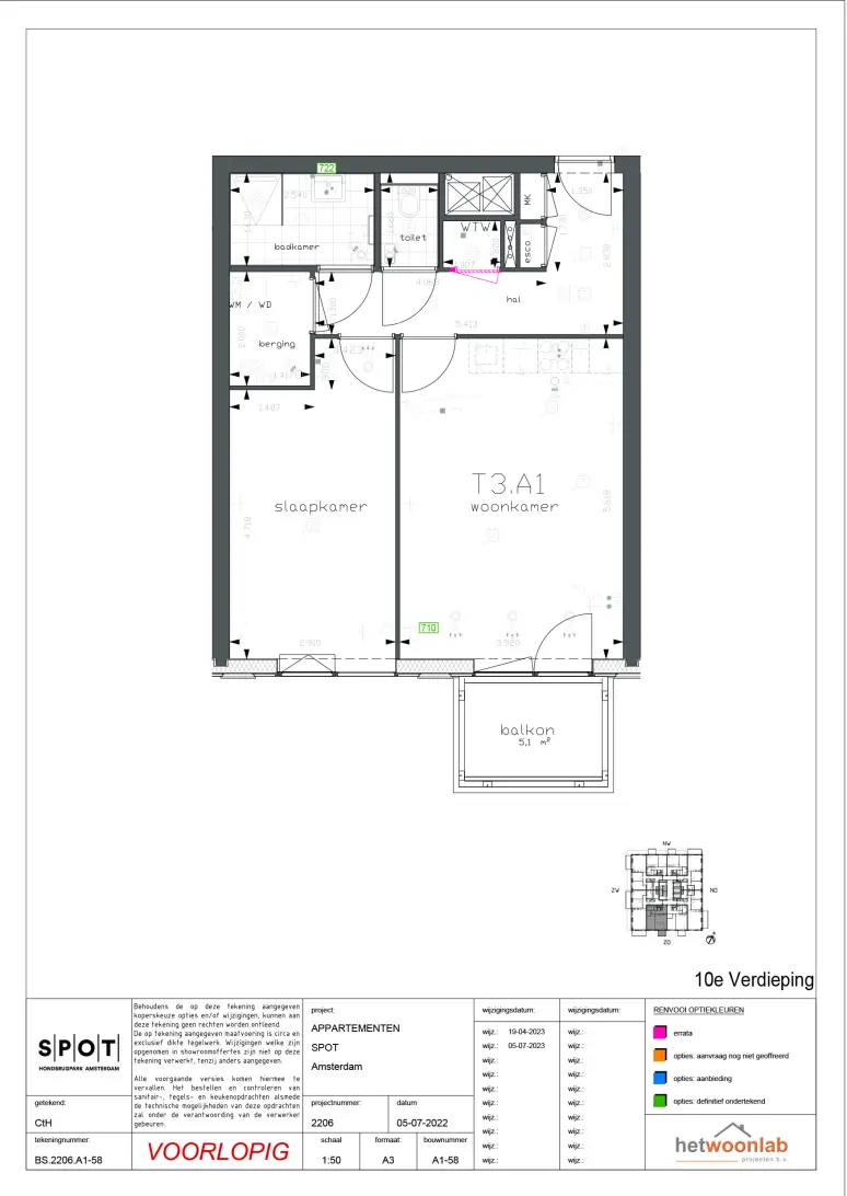
Bouwnummer A1-58
amsterdam
2 foto's
Verkocht
57 m²
Deze woning is niet meer beschikbaar, maak een account aan en ontvang voortaan het woningaanbod op maat.
Woningomschrijving
Je hebt alles bij de hand in deze perfect ingedeelde City apartments, variërend in grootte tussen de 46 m2 en 57 m2. De compacte City apartments zijn voorzien van alle comfort en gemak. Alles wat je nodig hebt om lekker te wonen, is aanwezig. Overzichtelijk en verrassend. Zo beschik je over een mooie badkamer, een slaapkamer, vloerverwarming en koeling. Ook geniet je van het warme zonnetje op je eigen balkon of terras.
Specificaties
Woning
Status
Verhuurd
Prijs
Prijs niet beschikbaar
Woonoppervlakte
57 m²
Buitenoppervlakte
5 m²
Aantal slaapkamers
1
