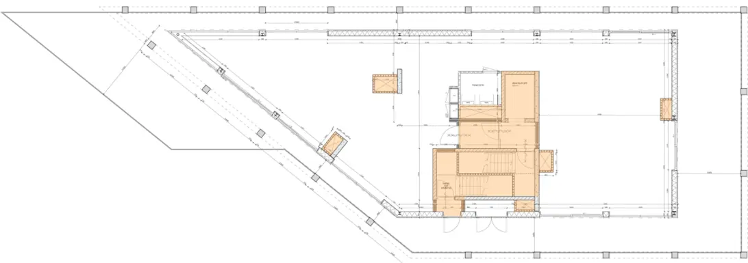
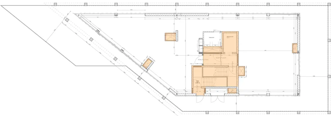
Bouwnummer 496
amsterdam
8 foto's
Verkocht
€ 2.325.000 v.o.n
176 m²
Deze woning is niet meer beschikbaar, maak een account aan en ontvang voortaan het woningaanbod op maat.
Specificaties
Woning
Status
Verhuurd
Prijs
€ 2.325.000 v.o.n
Woonoppervlakte
176 m²
Aantal slaapkamers
4
